Ontwikkeling Spoorzone-Noord Etten-Leur



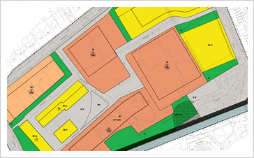
Afbeeldingen: bovenaan een stedebouwkundige opzet en onderaan een uitsnede verbeelding bestemmingsplan.

Werkgever - ARCADIS

Opdrachtgever - Gemeente Etten-Leur

 


Het gebied Spoorzone-Noord heeft de potentie uit te groeien tot een kern van voorzieningen voor het noordwestelijke deel van Etten-Leur. In het plangebied komt een Brede School, een woonzorgcomplex en 100 woningen.

In de periode van 2011-2012 ben ik projectleider geweest voor het opstellen van het bestemmingsplan en het verrichten van alle onderzoeken zoals verkeersonderzoek, watertoets, akoestisch onderzoek, luchtkwaliteit, externe veiligheidsonderzoek, aanvullend onderzoek flora en fauna en een planschade risicoanalyse. In een klein teamverband en met een grote pool van specialisten hebben we naar tevredenheid en in nauwe samenwerking met de gemeente het werk verricht. Met als resultaat dat op 1 oktober 2012 het BP Spoorzone-Noord is vastgesteld door de gemeenteraad van Etten-Leur.


Eline Boele, Projectleider Gebieds & Locatieontwikkeling